Dodaj produkty podając kody
Dodaj plik CSV
Wpisz kody produktów, które chcesz zbiorczo dodać do koszyka (po przecinku, ze spacją lub od nowej linijki).
Powtórzenie wielokrotnie kodu, doda ten towar tyle razy ile razy występuje.
Stosowany w instalacjach grzewczych i chłodzących.
Montowany na ścianie pomiędzy źródłem ciepła lub chłodu a grupami pompowymi.
Przeznaczony do szybkiego i wygodnego podłączenia dwóch grup pompowych PrimoTherm do źródła ciepła/chłodu.
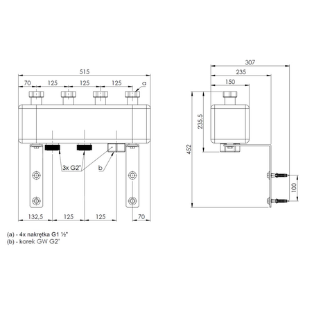
Opis
Dwie pary przyłączy zasilających i powrotnych obiegów pompowych.
Przyłącza od strony instalacji dostosowane do grup pompowych PrimoTherm: Vario, K DN25 oraz K DN32.
Dwa przyłącza zasilające od strony źródła umożliwiają swobodne podłączenie źródła z lewej i z prawej strony.
Wyposażony w izolację termiczną.
Elementy dostawy
Uchwyty do montażu naściennego.
Kołki montażowe.
Uszczelki do połączenia obiegów grzewczych.
Korek do zaślepienia jednego z przyłączy zasilających ze źródła ciepła/chłodu.
Marka
Symbol
8077319
Seria
Rodzaj towaru
Rozdzielacze i sprzęgła hydrauliczne
EAN
4049827202613
Kod producenta
77319
Maksymalna moc grzewcza [kW]
160
Liczba przyłączy kotła
1
Rodzaj przyłącza kotła
Gwint zewnętrzny
Rozmiar przyłączy kotła
2''
Wykonanie połączenia od strony sieci
Nakrętka
Rozmiar przyłącza od strony sieci
1 1/2''
Liczba przyłączy od strony sieci
2
Strona www producenta
www.afriso.pl
Zapytaj o produkt
Napisz swoją opinię


































